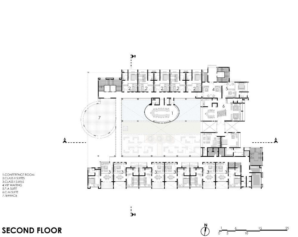
Circuit house is a government public building which not only accommodates the VIP authorities but also acts as a node for political meetings, government authorities’ discussions and conferences. Usually, circuit houses have large number of visitors and occupancy can vary extremely. The project site is located in Pune - political hub for western Maharashtra. The project is mainly divided into two parts- • Accommodation - Guest suites • Public areas –Conference and meeting hall facilities, Dining, Reception, VIP and visitor’s waiting areas etc. Design is based on climate responsive architecture with passive strategies for thermal and visual comfort along with innovative active strategies to achieve energy efficient green building. The project has received GRIHA Five star rating. Today architecture has become threat to our planet. One has to be conscious while using natural resources for any development on the earth. Hence green and sustainable architecture is not just a trend but a lifesaving measure for our earth and so the sustainable green architecture is no more a distinction as a design concept. In fact it shall be the basic ethos for all the development. Government buildings are normally perceived as menace to sustainability as they consume high energy because of basic lacuna in the planning and design. This project is an initiative to make Government buildings “Green and Energy Efficient” and to create awareness in the government sector. Our focus here is to design a climate responsive building with passive strategies for thermal and visual comfort along with innovative active strategies to achieve energy efficient green building. We also believe that, “Architecture shall adhere to its time, the era, in which it is built.” The shaded courtyard, which is the focal point of the building and passage around it leading to suites, is a highly contemporary version of the ‘old chowk’ of traditional Wadas of Pune with interiors and landscape seamlessly merging with architecture. This project is designed following all passive strategies of planning, fenestration, zoning etc. Central shaded courtyard and spaces around it are well protected from sun yet allowing plenty of natural ventilation. The facade of the building responds to the orientation. Transition spaces play a key role in achieving thermal and visual comfort. Following table shows the details of energy efficiency achieved in terms of lighting, water, HVAC and materials.
VVIP Circuit House Pune (2017)
VVIP Circuit House Pune (2017)
2016-17 VVIP Circuit House, Pune (2016-17)
Winner National Award -Public places - VVIP Circuit House Pune (2016)
Nomination Landscape category - VVIP Circuit House Pune (2016)
Nomination Building of the year 2018 - VVIP Circuit House, Pune (2018)